Røntgenundersøkelse av bryst. Krever tilgang til Kreftregisterets database for invitasjon og rapportering av funn.
Mammografiprogrammets kvalitetsmanual (Kreftregisteret, 2019)Mammografiprogrammet. Hentet Januar 27, 2020 https://www.kreftregisteret.nohttps://www.kreftregisteret.no/Generelt/Rapporter/Mammografiprogrammet/Kvalitet/ legges til grunn for oppbygging og gjennomføring av tjenesten. Det er kommet en ny versjon i 2023.
Krav til bygg
Arealer knyttet til screening kan ligge adskilt fra annen bildediagnostisk virksomhet, i eller utenfor sykehuset. Noen sykehus velger å skille ventearealer for de som skal til screening fra de pasientene som skal til utredning av symptomer. Dette krever mer areal for ventesoner, og bør vurderes i prosjektene. Bilde 1 viser et mammografirom ved AHUS.
Undersøkelsesrom skal utformes for effektiv logistikk, slik at det blir færrest mulig skritt for personalet. Rommet må ha plass til mammografimodalitet med tilhørende manøverpult og det bør være ekstra blyskjerm til personalet.
Arealer knyttet til mammografi screening har en pasientflyt som kan beskrives slik:
Venterom -> samtale -> laboratorium -> omkledning -> ut, med direkte adkomst mellom rommene.


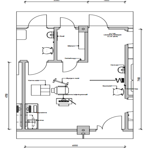
Figur 1 viser et eksempel på utforming av undersøkelsesrom for mammografiscreening.
Referanser
- Kreftregisteret (2019). Mammografiprogrammet. Hentet Januar 27, 2020 https://www.kreftregisteret.no. https://www.kreftregisteret.no/Generelt/Rapporter/Mammografiprogrammet/Kvalitet/