Bruksområde
Benyttes til undersøkelser av hele kroppen og til CT- veiledet prosedyrer for diagnose og behandling. Her er det samarbeid mellom flere faggrupper og det må legges til rette for anestesi, pasientovervåking og undervisning.
Krav til bygg
Flere steder benyttes 3mmPB (bly) i vegger i CT rommet, bl.a. fordi det går mot utvikling av høyere energier ved CT undersøkelser. Dette gjelder særlig mot manøverrom og kontorlokaler med faste arbeidsplasser.
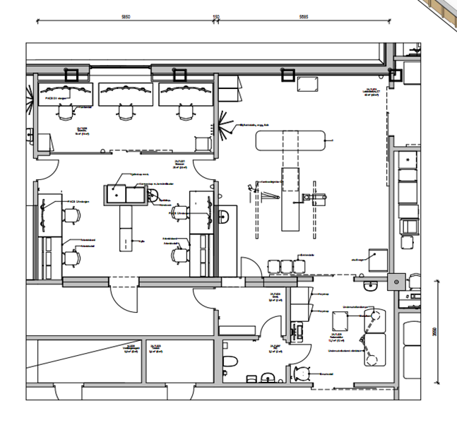
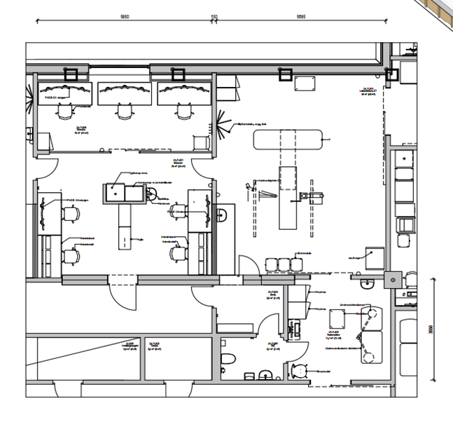
Plassering av CT i rommet skal være slik at det er fri sikt til pasient fra manøverrom.
Modaliteten består av gantry, undersøkelsebord og manøvreringspult.Gantry innholder røntgenrør og detektor, og pasientbordet forflytter pasienten inn og ut av åpningen for å ta bilder.
Det stilles krav til rommets utforming på grunn av bordbevegelse i lengderetning og utstyrets størrelse. I tillegg må det være plass til intervensjon og tilleggsutstyr, som f.eks. ultralyd og anestesi.
Det skal være en automatisk kontrastinjektor som styres fra manøverrom.
Mellom CT og systemkabinett er det maksimalt 8 meter kabel. Systemkabinett kan stå inne på lab, men bør stå i teknisk rom pga. støy og varmeutvikling.
Styrings-PC for modalitet kan plasseres inne på teknisk rom. Dette vil være en fordel fordi denne PC ‘en støyer en del og det er en fordel å få den ut av manøverrom.
Grense på kabellengde er maksimalt 25 meter mellom modalitet og teknisk rom.
I bilde 1 vises eksempel på CT.
https://helsenorge.no/undersokelse-og-behandling/ct-undersokelse

I figur 1 vises en skisse av et CT- rom med tilhørende manøverrom og arbeidsplass for lege.
