Bruksområde
Gjennomlysningsmodaliteter benyttes til et vidt spekter av funksjonsundersøkelser, behandling og visse typer intervensjonsprosedyrer. En multifunksjonell modalitet kan også gi muligheter til generell røntgen. Her er det samarbeid mellom flere faggrupper og det må legges til rette for anestesi, pasientovervåking og undervisning.
Krav til bygg
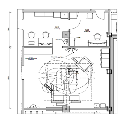
Plassering av gjennomlysningsutstyr i rommet skal være slik at det er fri sikt til pasient fra manøverrom.
Rommet må ha plass til utstyr som roterer rundt undersøkelsesbordet. I tillegg til gjennomlysningsapparatet er det behov for mobil manøverpult med ekstra skjerming og store skjermer for bildevisning. Skjermene kan både henge i tak og stå på hjul.
Det må det være plass til pasientseng eller rullestol.
Dersom det skal være anestesiarbeidsstasjon inne på laboratoriet, er dette utstyr som krever plass. Det er også behov for ekstra plass til overvåkningsskjermer (anestesi) inne på manøverrom.
Det skal være mulig å jobbe fra begge sider av undersøkelsesbordet.
Rommet skjermes i henhold til anbefaling i Veileder for medisinsk bruk av røntgen og MR (Direktoratet for strålevern, Revidert 2018 Veileder 5. Veileder om medisinsk bruk av røntgen- og MR- apparatur. . Direktoratet for strålevern. Hentet 01 29, 2020).
I figur 1og 2 gis et eksempel på utforming av gjennomlysningslaboratorium.


Referanser
- Direktoratet for strålevern (2018). Veileder 5. Veileder om medisinsk bruk av røntgen- og MR- apparatur. . Direktoratet for strålevern. Hentet 01 29, 2020.