Sterilsentral Nye Aker sykehus
Oslo universitetssykehus HF - Aker
4.13 Sterilsentral
Innledning
Sterilsentraler er p.t. i planleggingsstadiet. Hensikten er å vise hvilke løsninger som er valgt i prosjektet som presenteres her. Alle detaljer er ikke tatt med i eksemplet. Det kan være gjort endringer i forhold til rom, arealer, funksjoner og grad av automatisering i forhold til det som presenteres her..
I de eksemplene som vises foreligger det ikke noen form for evalueringsrapport fra reell drift. Det er heller ikke tatt stilling til fordeler og ulemper med de forskjellige typer layout, størrelser, automatisering, utstyr osv.
Nye Aker sykehus skal være et akuttsykehus med lokal-, område- og regionsfunksjoner for psykisk helsevern og tverrfaglig spesialisert behandling av ruslidelser (TSB). Nye Aker skal også ha lokalsykehusfunksjoner innen somatikk.
Ved prosjekt Nye Aker sykehus planlegges det en ny sterilsentral. Sterilsentralen skal vaske og sterilisere utstyr for totalt 56 operasjonsstuer, hvorav 22 operasjonsstuer ved Nye Aker sykehus, 24 operasjonsstuer ved Nye Rikshospitalet og 10 operasjonsstuer ved Radiumhospitalet. I tillegg skal vask og sterilisering av fleksible endoskop i Nye Aker sentraliseres og ivaretas i sterilsentralen. Sterilsentralen er prosjektert til ca. 2.300 m2.

Romprogram
Romprogrammet er for sterilsentralen er gjengitt i tabellen og er basert på prosjekterte arealer

Automatisering
Fremtidens sterilsentral skal automatiseres i den grad dette er mulig og hensiktsmessig for å sikre kvalitet og god økonomi. Følgende overordnede prinsipper ønskes vektlagt:
- Manuelle arbeidsoppgaver legges til områder med dagslys
- Tunge fysiske arbeidsoppgaver skal i størst mulig grad automatiseres,
- Automasjon og produksjonsutstyr legges til områder uten dagslys.
- Fleksible automasjonsløsninger med mulighet for ”fast-track” og manuelle alternativer.
- Overholdelse av hygienestandarder.
- Effektiv arbeidsflyt med IT-støttede produksjonsprosesser.
- Forberedelse til instrumentvask, pakking og kontroll av instrumenter vil fortsatt være manuelle prosesser. Her må det tilrettelegges for gode og effektive løsninger som ivaretar et godt arbeidsmiljø.
- Layoutforslag til basisløsninger skal også ligge innenfor de gitte bygningsrammer og begrensninger
Sterilsentralen i Nye Aker har lagt stor vekt på automatisering. Hovedmålene med automatisering er:
- Redusere tunge løft
- Redusere manuell transport av tunge vogner (skyv og vrid)
- Redusere repeterende arbeid
- Øke effektiviteten ved bedre utnyttelse av personell
- Øke kvaliteten ved å frigjøre personell for styring og kontroll
- Minimering av feil gjennom bruk av strekkoder og automatiske anlegg og styringssystemer
Basert på de hovedmålene med automatisering som de har så har de foretatt en prioritering av automatiseringstiltak basert på følgende liste:
- Automatisk lager for sterile artikler og tomme transportkasser
- Automatisk mottak fra AGV og oppstilling av transportvogner med instrumenter til gjenbehandling fra eksterne sykehus
- Automatisk tømming av transportvogner
- Automatisk vognvask
- Automatisk oppstilling av rene transportvogner
- Automatisk pakking av transportvogner med sterile artikler
- Automatisk inn- og utlasting av dekontaminatorer
- Automatisk pakking og tømming av autoklavestativer
- Automatisk inn- og utlasting av autoklaver
Planløsning hovedområder sterilsentral

Planløsning personal- og øvrige rom

Hovedflyter transportvogner
I figuren vises forskjellige typer flyter for transportvogner fra andre sykehus, retur internt på Aker sykehus, tomme transportvogner, transportvogner som skal transporteres til andre sykehus og transportvogner til Aker sykehus med sterile artikler.

Hovedflyt instrumenter
I figuren vises flyt av urene, rene og sterile instrumenter.

Hovedflyt engangsinstrumenter
I figuren vises flyt med engangsartikler til utpakking, tomme AGV-vogner i retur til VDS og kasser med engangsartikler.

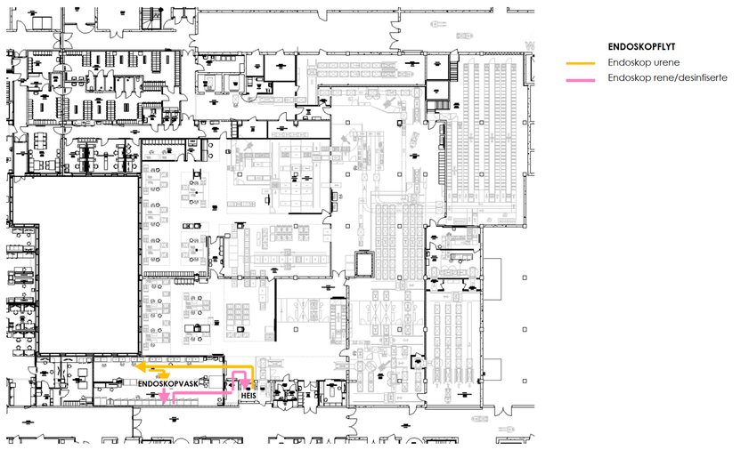
Hovedflyt endoskop
Figuren viser flyt av urene og rene/desinfiserte endoskop.

Hovedflyt tomme kasser og containere
Figuren viser flyten av urene og rene kontainere og kasser.

Konsepter for containere, kasser og transportvogner
De automatiske løsningene i forslaget er basert på et konsept der det benyttes en transportplate under containere og kasser.
Kassene benyttes til enkeltpakkede artikler og til engangsartikler (prosedyresett).

De automatiske løsningene i forslaget er basert på et konsept der det benyttes transportvogner med plass til 2 innervogner. Ulik type kirurgi - større prosedyrer innen ortopedi har flere vogner, men mindre prosedyrer innen øye/øre kan ei vogn inneholde utstyr til flere operasjoner. Transportvognen har dører og kan lukkes helt og forsegles for ekstern transport.
