Logistikksenter Helse Midt-Norge

4.11 Sentrallager

Helse Midt-Norge har etablert en regional forsyningsstruktur med ett regionalt lager. St. Olavs hospital HF er av det regionale helseforetaket gitt i oppdrag å drifte Logistikksenteret, som er lokalisert på Heimdal rett sør for Trondheim Logistikksentret leverer avdelingspakka leveranser (avdelingspakkelogistikk – APL) til alle helseforetak og sykehuslokasjoner i regionen.

Nøkkelinformasjon:

  • 7.760 kvm. Skal utvides for å ivareta Helse Midt-Norges andel av nasjonalt beredskapslager smittevernsprodukter
  • Ca. 5.600 palleplasser. Skal utvides for å ivareta Helse Midt-Norges andel av nasjonalt beredskapslager smittevernsprodukter og helseregionens behov for beredskapslager for andre kritiske forbruksvarer
  • Lagerautomater (Vertical lift module - VLM), til sammen 23 stk. for ikke-sterile forbruksvarer og sterile forbruksvarer

Arealtabell Logistikksenter Helse Midt-NorgeKilde: Helse Midt-Norge RHF, St. Olavs Hospital HF

Varemottak#

Bildene nedenfor visere varemottaket på Logistikksenter Helse Midt-Norge med porter, oppstilling av inngående leveranser, område for crossdocking av varer og fryseskap.

Porter for inngående vareleveranser og varemottak Logistikksenter Helse Midt-NorgeKilde: Sykehusbygg HF

Pallelager Logistikksenter Helse Midt-Norge#

Bildene nedenfor viser pallelager og reolmerking på Logistikksenter Helse Midt-Norge.

En mulig løsning for plukkplasser i pallelager er bruk av flowracks, med innlagring fra baksiden og plukk fra forsiden:

Flowracks i pallelager, Logistikksenter Helse Midt-Norge Kilde: Sykehusbygg HF

Eksempel på oppsett over ulike størrelser på palleplasser på Logistikksenter Helse Midt-Norge (før utvidelse for beredskapslager for smittevernsprodukter), som grunnlag for å utarbeide reoldesign vises nedenfor.

Eksempel oppsett palleplasser i pallelager, Logistikksenter Helse Midt-Norge Kilde: Helse Midt-Norge RHF, St. Olavs Hospital HF

Sterile forbruksvarer lagres i pallelager i 3-lags transportforpakning, og kan plukkes og leveres fra sentrallager til avdelinger i 3-lags forpakning. Øvrige forbruksvarer (ikke-sterile) kan i pallelager lagres og plukkes i alle forpakningsenhetene (3-lags transportforpakning, 2-lags avdelingsforpakning og 1-lags forbruksforpakning), avhengig av størrelse på varen og hvilken uttakskvenstumsenhet sentrallageret leverer til avdelingene. Småvarer er mere egnet å lagre i hyllelager.

Ved plukk fra pallelager brukes plukkvogner. For større sentrallager brukes vanligvis plukktrucker med plukkvogn. Det er mulig at nest nederste nivå i pallelager benyttes som plukklokasjoner, og da med plukktruck som løfter lagermedarbeider til riktig høyde.

For mindre sentrallager brukes vanligvis bare plukkvogn hvor lagermedarbeider går med plukkvogn i pallelageret.

Plukkvogn og plukktruck pallelager, Logistikksenter Helse Midt-Norge Kilde: Sykehusbygg HF

Hyllelager, automatisert løsning#

Logistikksenter helse Midt-Norge har en automatisert løsning med Vertical lift module (VLM) for ikke-sterile varer. Til sammen 8 like lagerautomater med følgende tekniske spesifikasjoner:

Teknisk spesifikasjon ikke-steril lagerautomat Kilde: Helse Midt-Norge RHF, St. Olavs Hospital HF

Antall lagerautomater er beregnet med grunnlag i varesortiment (antall og volum på artikler) som skal lagres og lagerkapasitet pr lagerautomat.

Sterilt lager, automatisert løsning#

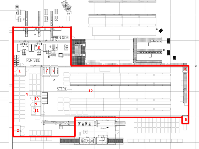
Logistikksenter Helse Midt-Norge har en løsning for sterilsonen med følgende rom:

Liste over rom i steril sone med nummereringKilde: Helse Midt-Norge RHF, St. Olavs Hospital HF
Rom i steril sone, Logistikksenter Helse Midt-Norge Kilde: Helse Midt-Norge RHF, St. Olavs Hospital HF
Steril sone med rom har følgende kravKilde: Helse Midt-Norge RHF, St. Olavs Hospital HF
Trykkforhold i rom og sluser i steril sone, Logistikksenter Helse Midt-Norge Kilde: Helse Midt-Norge RHF, St. Olavs Hospital HF
Vareflyt og personflyt avemballeringsrom, Logistikksenter Helse Midt-NorgeKilde: Helse Midt-Norge RHF, St. Olavs Hospital HF

Sterile varer i 3-lags transportforpakning er lagret i pallelager. Fra pallelager (grovlager) er det etablert banesystem med 3 baner som transportforpakningene settes på, og transporteres inn til uren side i avemballeringsrom via en hurtigport. Baneløsningen drives automatisk, styrt etter sensorer som registrer kartonger som står på båndet. For åpning, lukking og transport gjennom hurtigport er det etablert grensesnitt mellom banesystemet og hurtigporten.

Avemballeringsrommet er delt i en uren og ren side, med arbeidsbenk og glassvegg med luker. I avemballeringsprosessen, når 2-lags avdelingsforpakninger tas ut fra 3.lags transportforpakninger, jobber to ansatte sammen, en på uren side og en på ren side (rene og urene hender).

2-lags avdelingsforpakninger legges i plastkasser. Alle plastkassene har unik strekkodemerking, og i arbeidsprosessen scannes og knyttes varenummer til plastkasse. Plastkassene settes på transportvogn, for transport via varesluse til sterilt lager og for innlagring i lagerautomater.

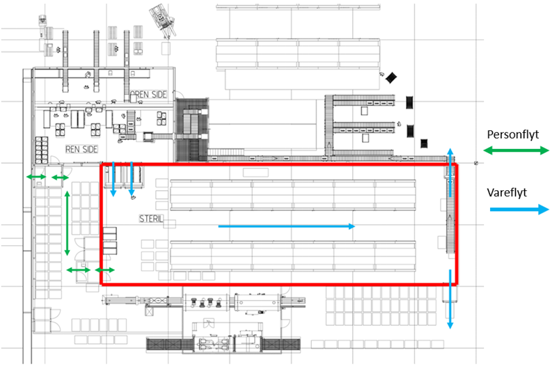
Vareflyt og personflyt i sterilt lager Logistikksenter Helse Midt-Norge Kilde: Helse Midt-Norge RHF, St. Olavs Hospital HF

I sterilt lager på Logistikksenter HMN en det en automatisert løsning med Vertical lift module (VLM) for sterile forbruksvarer. Til sammen 12 like lagerautomater, delvis partikkelredusert. Det finnes lagerautomater som tilfredstiller ISO klasse 8. Tekniske spesifikasjoner på delvis partikkelredusert Vertical lift module (VLM) for sterile forbruksvarer som er installert på Logistikksenteret vises i tabellen nedenfor.

Teknisk spesifikasjon steril lagerautomat Logistikksenter Helse Midt-Norge Kilde: Helse Midt-Norge RHF, St. Olavs Hospital HF

Plastkasser med sterile varer mottas i transportvogner via varesluse til sterilt lager. Plastkassene lagres inn på brett med lagerlokasjoner i lagerautomatene. Ved plukking presenteres brett med sterile varer, varene plukkes og legges i plastkasser. Det settes lokk på kassene, som da fungerer som 3-lags transportforpakning ved leveranser fra sentrallageret til sykehusenes avdelinger. Plastkassene transporteres på banesystem fra sterilt lager via varesluse til sammenstillingsområde, hvor de lastes i avdelingspakka transportvogner sammen med varer plukket i pallelager og ikke-sterile lagerautomater. I tillegg til varesluse for banesystemet er det i sterilt lager en varesluse på gulvnivå, som benyttes for varer som er for store til å transporteres i plastkasser og på banesystemet. I sterilt lager er det også stasjonert en lift, som benyttes til regelmessig renhold og vedlikehold av lagerautomater, bygg og teknikk.

Lagerautomater på sterilt lager i Logistikksenter Helse Midt-Norge vises nedenfor.

Vare- og personflyt i rom for rene kasser, Logistikksenter Helse Midt-NorgeKilde: Helse Midt-Norge RHF, St. Olavs Hospital HF

Rom for brannfarlige væsker Logistikksenter Helse Midt-Norge#

Rom for brannfarlige væsker er bygd som eget rom, som en del av pallelager. Rommet er på 270 m2 med ca 11 meter takhøyde. Rommet ligger mot yttervegg (rød markering i figuren nedenfor). Det er stålporter som står åpne ved normal drift, og som ved gassalarm og brannalarm lukkes. Ved gassalarm eller brannalarm stoppes ventilasjonsanlegg. Det er montert 3 stykk gassdetektorer 15 cm over gulvnivå på reolfagene. Det er satt opp to nivå for deteksjon av gass (forvarsel og alarm. Det er montert skumanlegg for brann.

Plassering brannsikkert rom (rød markering), Logistikksenter Helse Midt-NorgeKilde: Helse Midt-Norge RHF, St. Olavs Hospital HF

Vareutlevering#

I sonen vareutlevering er det følgende aktiviteter:

  • Oppstilling av plukkvogner med varer som er plukket i pallelager
  • Oppstilling av plukkvogner med varer som er plukket fra ikke-steril lagerautomat
  • Sorteringsbaner med sterile varer i plastkasser fra lagerautomater i sterilt lager
  • Oppstillingsplasser for transportvogner som lastes med varer fra de 3 plukksonene
  • Oppstillingsplasser for ferdig pakka transportvogner, klare for leveranse og transport til sykehusene

Vogn- og kassevask#

På Logistikksenter Helse Midt-Norge er det valgt en løsning hvor mange sterile varer avemballeres på lageret, og plastkasser med lokk benyttes til å pakke varene i, og som fungerer som 3-lags transportemballasje for leveranser fra Logistikksenteret til sykehusenes avdelinger. Når et større omfang av avemballeringen utføres i Logistikksenteret, og plastkasser benyttes ved leveranser, reduseres omfanget av 3-lags ytteremballasje som behandles ute i sykehusenes avdelinger. Reduksjon i behandling av den mest skitne emballasjen (3-lags transportemballasje) på avdelingsnivå i sykehusene er positiv ut ifra et smittevernsperspektiv, og bidrar til å redusere risikoen for hva skitt, støv og mulige skjeggkre kan forårsake på avdelingsnivå i sykehusene.

På Logistikksentret benyttes plastkasser både som lagringsenheter i lagerautomatene på sterilt lager, og til transportemballasje ved leveranser til sykehusenes avdelinger. Når transportvogner med tomme plastkasser returneres fra sykehusenes avdelinger til Logistikksenteret vaskes plaskassene og lokkene hver gang. Det er etablert en egen vaskelinje for plastkasser og lokk.

På Logistikksenteret benyttes det ulike type vogner:

  • Transportvogner; «burvogn» til sykehus som ikke har AGV, AGV-vogn tilpasset AGV-systemet på St. Olavs hospital og AGV-vogn tilpasset AGV-systemet på Sykehuset Nordmøre og Romsdal Hjelset.
  • Plukkvogner ved plukk på pallelager
  • Plukkvogner ved plukk på sterilt lager. Samme type vogn benyttes for varetransport mellom
  • Vogn for rene kasser

Det er behov for at vognene vaskes regelmessig og ved behov dersom de er skitne. Det er derfor etablert en vaskelinje for vogner.

Vaskelinje for vognvask, tunnelløsning. Logistikksenter Helse Midt-Norge. Kilde: Sykehusbygg HF

Avfallsrom#

Logistikksenteret har ekstern lokalisering, og ikke plassert som en del sykehusets bygningsmasse. Det er derfor behov for løsninger for avfallshåndtering i lagerlokalene.

Fra uren side i avemballeringsrommet er det etablert løsning med transportbånd hvor pappkartonger transporteres til kontainer med komprimator.

Det er etablert et avfallsrom for innkast til utvendige plasserte kontainere for fraksjonene papp, plast, restavfall og trevirke (engangs trepaller). I tillegg er det et mindre avfallsrom i tilknytning til rampe hvor andre fraksjoner som f.eks. mat samles opp for henting av ekstern renovatør.