Sengerom ved nye Aker (2031)
Oslo universitetssykehus HF - Aker
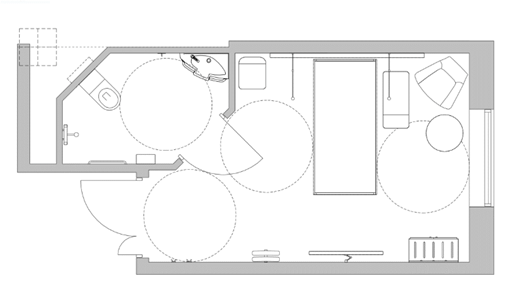
1A.9 NormalsengeområdeSR.134.00 Sengerom, somatikk
Nye Aker har kun ensengsrom og med bad ut mot korridor. Skråvegg til bad gir siktlinje fra korridor.
Areal ca. 15 m2.
Håndvask kun på bad.
Horisontale sykeromskanaler.
To-fløyet dør til korridor.
