Plassering av stråleterapienheten ved Sørlandet sykehus HF, Kristiansand
Sykehuset Sørlandet HF - Kristiansand
2A.12 Stråleterapi, foton og brachyterapi. Protonterapi.
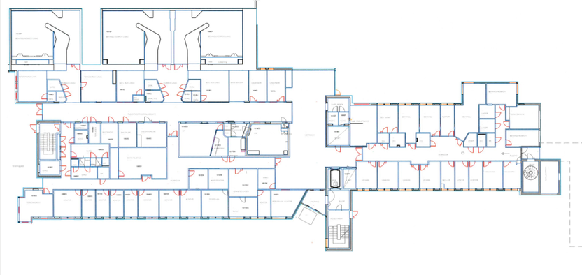
Stråleterapienheten er plassert som et frittstående bygg sammen med kreftbehandling (dagbehandling) og lindrende enhet. Strålebehandlingsrommene ligger i utkanten av bygningskroppen, uten areal over.

Fiksering og CT ligger sentralt til i enheten med behandlingsområdene i nærheten Dette understøtter en god pasientflyt i avdelingen.
Tre strålebehandlingsrom med maze er plassert mot fasaden. Manøverrom er plassert like utenfor behandlingsrommene og har indirekte dagslys fra glasstak i korridor.
Undersøkelse og samtalerommene ligger i nærhet til behandlingsrommene.
Omkledningsrom er ikke gjennomgående og ligger mot forrom til behandlingsrommene. Utformingen gjør at pasientene må ut i en fellessone før og etter behandling. Dette er ikke optimalt for skjerming av pasientene.
Egen korridor for de ansatte med doseplan, kontorer, pauserom og møte- og demonstrasjonsrom er etablert med adgangskontroll. Dette fungerer svært fint for avdelingen.