MC Erasmus University Hospital, Nederland Løsningskonsept intensiv/overvåking (2018)
Erasmus MC Hospital, Rotterdam NL - Rotterdam Nederland
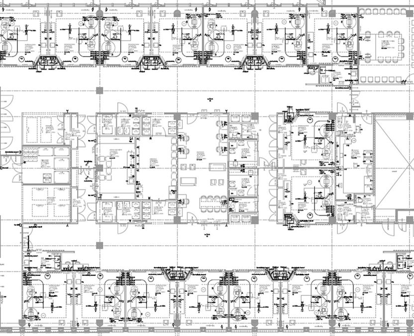
1A.6 Intensiv1A.12 Intermediær

Det er 38 intensivplasser og 16 overvåkingsplasser ved MC Erasmus. Arbeidsplasser på utsiden av intensivrommene med overvåking av to intensivrom. Dobbelt korridor med støtterom i midtkjernen.