Eksempel på tilpasningsdyktighet, Stavanger Universitetssykehus Nye SUS (2025)
Helse Stavanger HF - Stavanger Universitetssjukehus
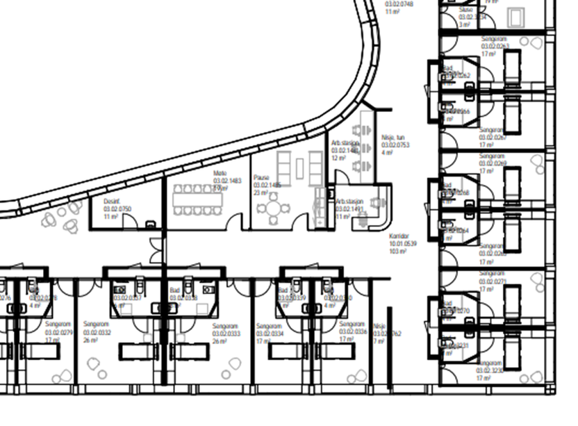
1A.9 Normalsengeområde
Prosjektet Nye SUS skriver i Forprosjektrapporten (2017) at «det er lagt opp til en standard rominndeling, med tilhørende standardiserte bærende konstruksjoner i hoveddelen av byggene. Dette gjør bygget robust i forhold til fleksibilitet, elastisitet og generalitet. Dette gir rom for enklere ombygning og tilpasning til endrede forutsetninger i hele byggets levetid, uten at det kreves større konstruktive inngrep. Samtidig vil standardisert byggutstyr og standardrom føre til enklere og færre rutiner mht. vedlikehold i driftsfasen.»
Sengerom, undersøkelsesrom og andre rom er planlagt slik at de enkelt kan endre funksjon, og det er også beskrevet hvor lang tid slike endringer er anslått å ta.
