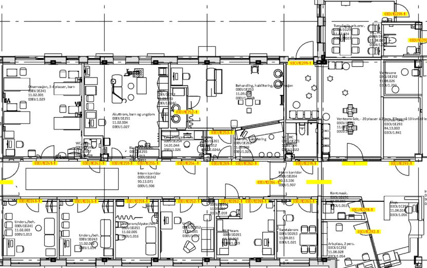
Areal for Barnehabilitering Kalnes (2015)
Sykehuset Østfold HF - Kalnes
2A.10 Poliklinikk1A.5 Habilitering / Rehabilitering
Arealet for barnehabilitering ligger i samme område som akuttrom barn og ungdom, observasjonsrom, undersøkelse- og behandlingsrom og BUP-team.
