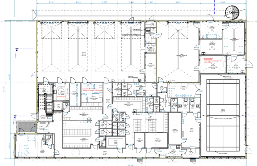
Ambualnsestasjon, 4 biler (2024)

Universitetssykehuset Nord-Norge HF - Narvik

3.7 Ambulansetjeneste

Ambulansestasjonen i Narvik er dimensjonert for 4 biler. I samme bygg ligger det en CBRNE-enhet. Stasjonen ligger på samme tomt som sykehuset i Narvik.

Arbeidstilsynet var involvert gjennom flere møter i prosjekteringsprosessen for å sikre gode løsninger som er i tråd med kravene Arbeidstilsynet.