Akuttsjukehuset Hjelset, Helse Møre og Romsdal HF (2025)
Helse Møre og Romsdal HF - Hjelset
4.10 SentralkjøkkenSR.071.02 Kjøkken, produksjonSR.071.05 Kjøkken
Helse Møre og Romsdal HF har en sykehusbasert forsyningsstruktur for mat. Akuttsjukehuset på Hjelset er planlagt med sentralkjøkken som produser mat med serveringsformen kok-kjøl-porsjon. Varmmaten porsjonspakkes på serveringstallerken, emballeres og kjøles ned. Kjølte porsjonspakker leveres til avdelingskjøkken hvor rettene varmes opp etter behov.
Sentralkjøkkenet ved Hjelset leverer mat til avdelingskjøkken ved Hjelset, kantinekjøkkenet ved Hjelset, i tillegg til eksterne leveranser til institusjoner i helseforetaket (Knausen og Kristiansund).
Sentralkjøkkenet og kantinekjøkkenet er plassert hver for seg. Kantinen mottar mat fra sentralkjøkkenet og den siste tilberedningen av kantinematen skjer i kantinekjøkkenet.
Akuttsjukehuset på Hjelset er planlagt med 196 somatiske sengeplasser, og 39 psykiatriske sengeplasser.
Det er en felles vare- og distribusjonssentral som sentralkjøkkenet benytter.
Sentralkjøkken
Sentralkjøkkenet med tilhørende arealer ved Akuttsjukehuset på Hjelset er prosjektert til ca. 560 m2. Nedenfor vises det en skisse basert på plantegning som viser flyt i sentralkjøkkenet. Nedenfor skissen vises sentralkjøkkenets romprogram.

Romprogram sentralkjøkken, Akuttsjukehuset på Hjelset:
| Romfnr | Romnavn og rombetegnelse | Programmert areal | Prosjektert areal | Kommentar |
|---|---|---|---|---|
| Mottakskontroll og utpakking: | ||||
| 4.10.003 | Varemottak | 50 | 29,3 | |
| 4.10.001 | Lager, Kjemikalier | 8 | 1,5 | |
| Lager: | ||||
| 4.10.020 | Lager, Mat | 5 | 12,5 | |
| 4.10.005 | Lager, Kjøl | 10 | 10,9 | |
| 4.10.006 | Lager, Kjøl | 10 | 10,8 | |
| 4.10.008 | Lager, Frys | 12 | 11 | |
| 4.10.012 | Lager, Mat | 10 | 9,3 | |
| 4.10.033 | Lager, Kjøl | 10 | 12,5 | |
| Tilberedning og produksjon: | ||||
| 4.10.009 | Kjøkken | 162 | 166 | Oppvask for kjøkkenet inngår i arealet og utgjør ca. 10 m2. Diettkjøkkenet er et eget rom som inngår i arealet, ca. 16 m2. |
| 4.10.004 | Lager, Utstyr | 20 | 3,9 | Prosjektert som areal i kjøkkenet (ikke eget rom) |
| 4.10.021 | Lager, Kjøl | 15 | 4 | Hurtigkjøl |
| 4.10.010 | Lager, Kjøl | 5 | 42,2 | Pakkerom porsjon |
| Ferdigvarelager: | ||||
| 4.10.011 | Lager, Kjøl | 65 | 71 | |
| Vognvask: | ||||
| 4.10.025 | Oppstillingsplass, Vogner | 20 | 9,2 | |
| 4.10.023 | Vaskerom, Vogner | 30 | 50,2 | |
| Støtterom: | ||||
| 4.10.013 | Kontor | 6 | 6,1 | |
| 4.10.029 | Kontor | 6 | 9,4 | |
| 4.10.028 | Pause | 20 | 10,1 | Pause/møterom |
| 4.10.030 | Kjøkken, Tekjøkken | 6 | 2,8 | Som en del av pause/møterom |
| 4.10.032 | WC, HC | 5 | 6,5 | |
| 4.10.026 | Sluse | 10 | 19,2 | |
| 4.10.002 | Sluse | 6 | 32,3 | |
| 4.10.035 | Garderobe | 10 | 19,2 | |
| 4.10.015 | Garderobe | 5 | 7,7 | |
| 4.10.016 | WC | 2 | 2 | |
| 4.10.037 | WC | 2 | 1,5 | |
| 4.10.018 | Dusj | 2 | 2 | |
| 4.10.036 | Dusj | 2 | 2 | |
| SUM: | 559,3 |
Nedenfor er et eksempel på utstyrsliste fra sentralkjøkkenet ved Akuttsjukehuset på Hjelset (SNR), hvor serveringsformen er kok-kjøl porsjon. Utstyrslisten er utarbeidet av storkjøkkenleverandør i samarbeid med sentralkjøkkenet. I tillegg til utstyret som er oppgitt i tabellen under er det en mindre utstyrsmengde som er levert av andre leverandører enn storkjøkkenleverandøren. Rommet «Tilberedning og produksjon» er ett rom, men i tabellen er det inndelt i to deler for å vise to områder i samme areal, se stiplede linjer i skissen med rominndeling.
Utstyrsliste sentralkjøkken, Akuttsjukehuset på Hjelset:
| Sone | Utstyr | Antall | Bredde (mm) | Dybde (mm) | Høyde (mm) |
|---|---|---|---|---|---|
| Mottak og utpakking | 1 Rustfribenk, hev- og senk, manuell | 1 | 2400 | 650 | 900 |
| Lager | Ikke utstyr i posisjonsliste (levert av annen leverandør) | ||||
| Tilberedning og produksjon, del 1 Tilberedning | 43 Rustfribenk med hylle | 1 | 2500 | 700 | 900 |
| Tilberedning og produksjon, del 1 Tilberedning | 43A Kum P525 med kurv SA212 | 1 | 500 | 450 | 250 |
| Tilberedning og produksjon, del 1 Tilberedning | 43B Kum P525 med kurv SA212 | 1 | 500 | 400 | 250 |
| Tilberedning og produksjon, del 1 Tilberedning | 44 Storkjøkken Batteri (K3003) | 1 | |||
| Tilberedning og produksjon, del 1 Tilberedning | 45 Kombivogn iCombi Classic 10-1/1 | 1 | 850 | 1014 | 775 |
| Tilberedning og produksjon, del 1 Tilberedning | 46 Åpent stativ iCombo 6-10 1/1 RS-12 | 1 | 850 | 620 | 700 |
| Tilberedning og produksjon, del 1 Tilberedning | 48 Rustfri vegghylle, 2 plan | 1 | 3000 | 300 | 600 |
| Tilberedning og produksjon, del 1 Tilberedning | 50 Mikser gulv m/Uttak Spar SP-60HA 400V | 1 | 632 | 770 | 1300 |
| Tilberedning og produksjon, del 1 Tilberedning | 51 Grønnsakkutter Hällde RG-200 | 1 | 215 | 475 | 515 |
| Tilberedning og produksjon, del 1 Tilberedning | 52 Rustfribenk, hev- og senk, manuell m/hjul | 1 | 200 | 650 | 900 |
| Tilberedning og produksjon, del 1 Tilberedning | 53 Kjølebenk Classic STH1600-2xGN3-MGH-GN3 | 1 | 1600 | 650 | 1040 |
| Tilberedning og produksjon, del 1 Tilberedning | 54 Mikser gulv m/uttak Spar SP-200A | 1 | 490 | 520 | 870 |
| Tilberedning og produksjon, del 1 Tilberedning | 55 Stativ Metos SP-200A | 1 | 540 | 455 | 450 |
| Tilberedning og produksjon, del 1 Tilberedning | 234 Ventilasjonshette (K3601) | 1 | 1000 | 1300 | 400 |
| Tilberedning og produksjon. del 2 Produksjon | 23 Doseringspumpe Metos Hot Fill Dos-2 | 1 | 700 | 585 | 1650 |
| Tilberedning og produksjon. del 2 Produksjon | 25 Kombigryte Proveno 4G 200E | 2 | 1360 | 920 | 900 |
| Tilberedning og produksjon. del 2 Produksjon | 27 Kombigryte Viking Combi 4G 100E | 2 | 1154 | 720 | 900 |
| Tilberedning og produksjon. del 2 Produksjon | 28 Kombigryte Viking Combi 4G 60E | 1 | 1047 | 720 | 900 |
| Tilberedning og produksjon. del 2 Produksjon | 30 Rustfribenk, hev- og senk, manuell m/hjul | 2 | 2000 | 650 | 900 |
| Tilberedning og produksjon. del 2 Produksjon | 36 Kombivogn iCombi Classic 20-1/1 | 3 | 877 | 1807 | 847 |
| Tilberedning og produksjon. del 2 Produksjon | 42 Vertikale Kuttere R45 T | 1 | 600 | 760 | 1400 |
| Tilberedning og produksjon. del 2 Produksjon | 50 Mikser gulv m/Uttak Spar SP-60HA 400V | 1 | 632 | 770 | 1300 |
| Tilberedning og produksjon. del 2 Produksjon | 60 Vannkjøler Sovinox PL260M | 3 | 2500 | 700 | 960 |
| Tilberedning og produksjon. del 2 Produksjon | 159 Redskapsvagn för pumptilbehør AT-77/8 | 1 | 774 | 562 | 1763 |
| Tilberedning og produksjon. del 2 Produksjon | 162 Bassengvogn Av-175 | 1 | 600 | 795 | 1600 |
| Tilberedning og produksjon. del 2 Produksjon | 156 Løftevogn Translift Nm 85 | 3 | 600 | 795 | 1600 |
| Hurtigkjøl | 62 Hurtignedkjølingsrom BC201SB-RI 400/3 | 3 | 600 | 795 | 1600 |
| Pakkerom | 35 Vacuumeringsmaskin, Gulvmodell Metos M2 63M3 400V | 1 | 710 | 780 | 1040 |
| Pakkerom | 65 Rustfribenk, hev- og senk, manuell med hjul | 1 | 2000 | 650 | 900 |
| Pakkerom | 65A Rustfribenk, hev- og senk, manuell med hjul | 1 | 1600 | 650 | 900 |
| Pakkerom | 65B Rustfribenk, hev- og senk, manuell med hjul | 1 | 1000 | 650 | 900 |
| Pakkerom | 68 transportør for tallerken | 1 | 1000 | 660 | 800 |
| Pakkerom | 69 Pakkemaskin Perseus Standard | 1 | 2934 | 851 | 1627 |
| Pakkerom | 72 Etikett skriver Annen Leverandør | 1 | 569 | 300 | 900 |
| Allergi/diett kjøkken | 10 Rustfribenk med vulst o SB | 1 | 1900 | 700 | 900 |
| Allergi/diett kjøkken | 10A Kum P525 med kurv SA212 | 1 | 500 | 400 | 250 |
| Allergi/diett kjøkken | 10B Kum P525 med kurv SA212 | 1 | 500 | 400 | 250 |
| Allergi/diett kjøkken | 11 Storkjøkken Batteri (K3003) | 1 | |||
| Allergi/diett kjøkken | 12 Rustfribenk med hylle | 1 | 2200 | 700 | 900 |
| Allergi/diett kjøkken | 13 Vekt Axm 15-2 | 1 | 240 | 285 | 105 |
| Allergi/diett kjøkken | 14 Kjølebenk Classic NT 1600-DSLx2-MPL-DSR | 1 | 1600 | 650 | 900 |
| Allergi/diett kjøkken | 15 Rustfribenk med hylle | 1 | 700 | 730 | 900 |
| Allergi/diett kjøkken | 16 Koketopp Diamante D74/10TCEOQ bordmod. | 1 | 800 | 730 | 900 |
| Allergi/diett kjøkken | 17 Kombivogn iCombi Classic 6-1/1 400V | 1 | 850 | 775 | 754 |
| Allergi/diett kjøkken | 18 Hurtignedfrys/-Kjølingskap MRBS-051-SA h | 1 | 790 | 820 | 900 |
| Allergi/diett kjøkken | 19 Mikser gulv m/uttak Spar SP-200A | 1 | 490 | 520 | 870 |
| Allergi/diett kjøkken | 20 Fryseskap Start MG70R BT HP R290 | 1 | 700 | 830 | 2080 |
| Allergi/diett kjøkken | 34 Metos Prince m/el. Tipp 60L 400V | 1 | 600 | 818 | 960 |
| Allergi/diett kjøkken | 210 Storkjøkkenbatteri m. Leddet tut (53001) | 1 | |||
| Ferdigvarelager | 160 Kasettvogn Pct-12 | 3 | 765 | 630 | 1300 |
| Ferdigvarelager | Vogner og reoler | 1 | 1958 | 2456 | 2468 |
| Vognvask og oppvask | 5 Vagndiskmaskin WD-18 CW 1-dörr, nedsänkt | 1 | 1958 | 2456 | 2468 |
| Vognvask og oppvask | 3 Diskmaskin Metos WD-B 650S H-V | 1 | 6625 | 948 | 1920 |
| Vognvask og oppvask | 230 Ventilasjonshette (K3601) | 1 | 4700 | 1800 | 240 |
| Oppvask for kjøkken | 6 Forvaskebasseng 700-11-3 | 1 | 1100 | 590 | 880 |
| Oppvask for kjøkken | 7 Forspylerdusj Vegg Annen Leverandør | 1 | |||
| Oppvask for kjøkken | 8 Grovoppvaskmaskin 400V Kp402E Plus | 1 | 1490 | 885 | 1970 |
| Oppvask for kjøkken | 231 Ventilasjonshette (K3601) | 1 | 1600 | 1600 | 400 |
Kantinekjøkken
Kantinekjøkkenet med tilhørende arealer ved Akuttsjukehuset på Hjelset er prosjektert til ca. 73 m2. Nedenfor vises det en skisse basert på plantegning som viser flyt i kantinekjøkkenet. Nedenfor skissen vises romprogram for kantinekjøkken og kantine.

Romprogram kantinekjøkken, Akuttsjukehuset på Hjelset:
| Romfnr | Romnavn og rombetegnelse | Programmert areal | Prosjektert areal | Kommentar |
|---|---|---|---|---|
| AGV-stasjon | Mottak og utpakking skjer i sentralkjøkkenet. Kantinekjøkkenet mottar varer i vogn fra sentralkjøkkenet. Leveranser fra sentralkjøkkenet transporteres med AGV til AGV-stasjon som ligger i nærheten av kantinekjøkkenet. | |||
| Lager: | ||||
| 6.5.009 | Lager, Kjøl | 5 | 5,6 | |
| 6.5.011 | Lager, Frys | 5 | 3 | |
| Kjøkken: | ||||
| 6.5.003 | Kjøkken | 10 | 42,7 | |
| Oppvask: | ||||
| 6.5.004 | Oppvask | 15 | 19,3 | |
| Støtterom: | ||||
| 6.4.025 | WC, Personal | 2 | 1,9 | Plassert i korridor utenfor kantinekjøkkenet |
| SUM | 72,6 |
Romprogram kantine, Akuttsjukehuset på Hjelset:
| Romfnr | Romnavn og rombetegnelse | Programmert areal | Prosjektert areal | Kommentar |
|---|---|---|---|---|
| 6.5.002 | Anretning | 15 | 60,6 | |
| 6.5.001 | Kantine | 187,5 | 220 | |
| SUM: | 280,6 |
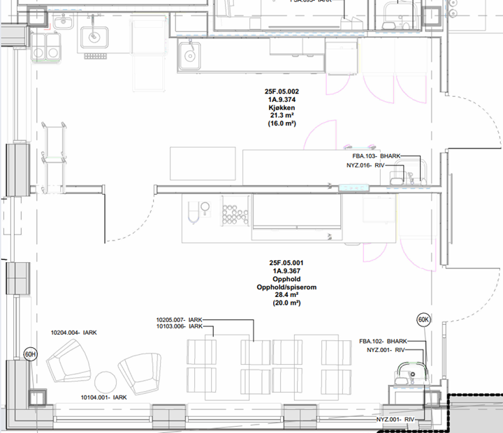
Avdelingskjøkken
Nedenfor er et eksempel på avdelingskjøkken og oppholdsrom ved Akuttsjukehuset på Hjelset. Avdelingskjøkkenet er prosjektert til ca. 22 m2, og oppholdsrommet er prosjektert til ca. 29 m2. Se utsnitt av plantegning nedenfor.
